TS 5000 RFS komplett packat * Överliggande dörrstängare med glidskena EN 3-6 med elektrisk freeswing-funktion och rökdetektor
- Stängningskraften kan justeras steglöst från framsidan
- Stängningskraftsdisplayen säkerställer rätt inställning
- Stängningsfart justerbar framifrån med ventil
- Tillslag justerbart framifrån med ventil
- Elektrisk freeswing-funktion
- Dörrstängare kan användas för höger- och vänsterhängda dörrar
- Strömförsörjning för matningsspänning på 230 V
- Rökbrytare med anpassning av larmtröskelvärde, föroreningsindikator och dold aktiveringsknapp för testning
- Extra rökbrytare kan anslutas
- Höjdutjämning på +/- 2 mm möjligt
Användningsområden
- Brand- och rökskyddsdörrar
- Anslagsdörrar till höger och vänster
- Anslagsdörrar upp till 1400 mm dörrbredd
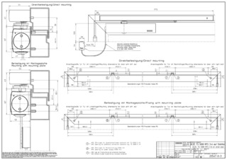
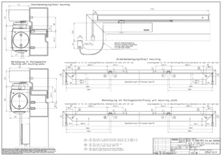
- Dörrbladsmontage gångjärnsida
- Uppställningssystem med integrerad uppställningsfunktion med free-swing
- Barriärfria ingångar enligt DIN 18040
Produktspecifikationer
| TS 5000 RFS komplett packat | |
| Stängningskraft enligt EN 1154 | EN 3 - 6 |
| Dörrbredd (max.) | 1400 mm |
| Monteringssätt | Dörrbladsmontage gångjärnsida |
| Öppningsvinkel (max) | 180 ° |
| Samma utförande som DIN-L och DIN-R | Ja |
| Matningsspänning | 230 V AC |
| Ingångsspänning | 230V AC |
| Frekvens matningsspänning | 50/60 Hz |
| Nominell drifttid | 100 % |
| Kapslingsklassning | IP20 |
| Uppfyllande av standard | EN 1154:1996/A1:2002/AC:2006, EN 1155 |
| Godkännanden | Allmänt bygglov från DIBt som uppställningssystem |
| Lämplighet brandklassade dörrar | Ja |
| Montageplatta med hålbild enligt EN 1154 bilaga | Ja |
| Längd | 327 mm |
| Bredd | 47 mm |
| Höjd | 60 mm |
| Freeswing-område | 85 ° - 160 ° |
| Inställbar stängningskraft | Ja, steglös justering |
| Inställbar stängningsfart | Ja |
| Inställbart tillslag | Ja, via ventil |
| Integrerad öppningsbroms | Nej |
| Position stängningskraftsjustering | Fram |
| Stängningskraftsdisplay | Ja |
| Säkerhetsventil mot överbelastning | Ja |
| Värmestabil ventil | Ja |
| Uppställning | Elektrisk, för freeswing-funktion |
| Integrerad rökdetektor | Ja |
| Föroreningsindikator | Ja |
| Anpassning av larmtröskelvärde | Ja |
| Integrerad strömförsörjning | Ja |
| Flexibel öppningsbegränsning | Ja |
Nedladdningar
Varianter och tillbehör
* Information om de produkter som visas
De produkter som nämns ovan kan avvika i form, typ, egenskaper och funktion (konstruktion, mått, tillgänglighet, godkännanden, standarder etc.) beroende på land. För frågor, kontakta din GEZE-kontakt eller skicka oss E-Mail .