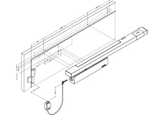
TS 5000 RFS 3-6 * Överliggande dörrstängare med glidskena för enkeldörrar upp till 1400 mm med elektrisk freeswing-funktion och rökdetektor
- Steglöst justerbar stängningskraft enligt EN3-6
- Driftspänning 230 V AC
- Kan användas på höger- och vänsterhängda dörrar utan omställning
- Free-swing-funktion efter att dörren öppnats en gång, till ca 90°
- Komfortuppställningsfunktionen låser dörren i slutet av freeswing-området
- Integrerad rökdetektor vars signal stänger dörren automatiskt vid brand
- Rökbrytare med föroreningsindikator och anpassning av larmtröskelvärdet
- Extra rökdetektor kan anslutas
- Hydraulisk ändslagsverkan som accelererar dörren strax före stängtläge
- Stängningsfarten kan anpassas individuellt
- Stängningskraftsdisplay för enkel kontroll av inställningen
- Alla funktioner justerbara framifrån
Användningsområden
- Brand- och rökskyddsdörrar
- Anslagsdörrar till höger och vänster
- Anslagsdörrar upp till 1400 mm dörrbredd
- Dörrbladsmontage gångjärnsida
- Uppställningssystem med integrerad uppställningsfunktion med free-swing
- Barriärfria ingångar enligt DIN 18040
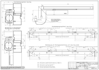
Monteringssituationer i referensobjekt och videor
Produktspecifikationer
| TS 5000 RFS 3-6 | |
| Stängningskraft enligt EN 1154 | EN 3 - 6 |
| Barriärfritt enligt DIN 18040 upp till dörrbredd (max) i mm | 1400 mm |
| Dörrbredd (max.) | 1400 mm |
| Monteringssätt | Dörrbladsmontage gångjärnsida |
| Öppningsvinkel (max) | 180 ° |
| Ingångsspänning | 230V AC |
| Lämplighet brandklassade dörrar | Ja |
| Freeswing-område | 85 ° - 160 ° |
| Inställbar stängningskraft | Ja, steglös justering |
| Inställbar stängningsfart | Ja |
| Inställbart tillslag | Ja, via ventil |
| Integrerad öppningsbroms | Nej |
| Position stängningskraftsjustering | Fram |
| Stängningskraftsdisplay | Ja |
| Uppställning | Elektrisk, för freeswing-funktion |
| Integrerad rökdetektor | Ja |
Nedladdningar
LABELLING OBLIGATION: © GEZE GmbH
Varianter och tillbehör
* Information om de produkter som visas
De produkter som nämns ovan kan avvika i form, typ, egenskaper och funktion (konstruktion, mått, tillgänglighet, godkännanden, standarder etc.) beroende på land. För frågor, kontakta din GEZE-kontakt eller skicka oss E-Mail .