Slimdrive SLT-FR * Automatiskt skjutdörrssystem med teleskop för utrymnings- och räddningsvägar för användning i de smalaste glasfasaderna
- Utrymningsvägsfunktion med redundant automatikutförande
- Två parallella löpskenor styr dörrbladen så att stora öppningsbredder uppnås
- Mycket tyst likströmsdrivenhet med lågt slitage och en höjd på endast 7 cm
- Kan kopplas ihop och integreras i fastighetsautomationen med hjälp av den öppna standarden BACnet
- Automatisk felidentifiering och loggning
- Fri parametersättning för in- och utgångar för olika funktioner
- Integrerat batteri för nödöppning och nödstängning vid strömavbrott
- Olika mekaniska och elektriska låsningar kan fås som tillval
Användningsområden
- Dubbel- och fyrflygliga skjutdörrsystem i räddnings- och utrymningsvägar
- I trånga utrymmen med liten fri öppningsbredd eller lite plats intill dörröppningen
- Inner- och ytterdörrar med hög passagefrekvens
- Öppningsbredder från 1000 till 3600 mm möjliga
- Dörrbladsvikter upp till 80 kg per dörrblad
Monteringssituationer i referensobjekt och videor
Produktspecifikationer
| Slimdrive SLT-FR | |
| För dörrsystem med dubbeldörrar | Ja |
| För dörrsystem med fyrflygliga dörrar | Ja |
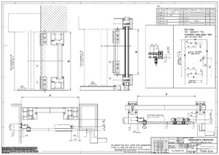
| Höjd | 70 mm |
| Djup | 247 mm |
| Dörrbladsvikt (max.) 2-flyglig | 80 kg |
| Dörrbladsvikt (max.) fyrflyglig dörr | 70 kg |
| Öppningsbredd dubbeldörr | 1000 mm - 3000 mm |
| Öppningsbredd fyrflyglig dörr | 1600 mm - 3600 mm |
| Driftstemperatur | -15 - 50 °C |
| Kapslingsklassning | IP20 |
| Nätfrånkopplare | Huvudbrytare i automatiken |
| Uppfyllande av standard | AutSchR, DIN 18650, DIN EN ISO 13849: Performance Level D, EN 16005 |
Nedladdningar
LABELLING OBLIGATION: © Robert Les / GEZE GmbH
LABELLING OBLIGATION: © Robert Sprang / GEZE GmbH
LABELLING OBLIGATION: © Robert Sprang / GEZE GmbH
LABELLING OBLIGATION: © Lothar Wels / GEZE GmbH
LABELLING OBLIGATION: © Lothar Wels / GEZE GmbH
LABELLING OBLIGATION: © Robert Sprang / GEZE GmbH
LABELLING OBLIGATION: © Dirk Wilhelmy / GEZE GmbH
LABELLING OBLIGATION: © Dirk Wilhelmy / GEZE GmbH
LABELLING OBLIGATION: © Dirk Wilhelmy / GEZE GmbH
LABELLING OBLIGATION: © Dirk Wilhelmy / GEZE GmbH
LABELLING OBLIGATION: © Robert Les / GEZE GmbH
LABELLING OBLIGATION: © Pau Esculies / GEZE GmbH
LABELLING OBLIGATION: © Pau Esculies / GEZE GmbH
LABELLING OBLIGATION: © Sigrid Rauchdobler / GEZE GmbH
LABELLING OBLIGATION: © Lorenz Frey / GEZE GmbH
LABELLING OBLIGATION: © Robert Sprang / GEZE GmbH
LABELLING OBLIGATION: © Sigrid Rauchdobler / GEZE GmbH
LABELLING OBLIGATION: © GEZE GmbH
Varianter och tillbehör
* Information om de produkter som visas
De produkter som nämns ovan kan avvika i form, typ, egenskaper och funktion (konstruktion, mått, tillgänglighet, godkännanden, standarder etc.) beroende på land. För frågor, kontakta din GEZE-kontakt eller skicka oss E-Mail .