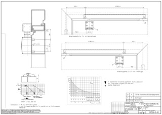
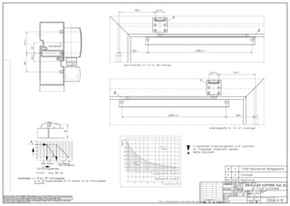
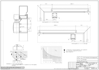
Pivot bearing T-Stop * For opening restriction or hold-open of doors without door closer
- Surface-mounted
Application Areas
- Doors without smoke and fire protection requirements for indoor use
- Hold-open of non-fire protection doors
- Restriction of the opening angle
- Can be used in combination with double leaf systems with automatic active leaf and manual passive leaf
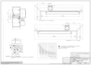
Technical data
| Pivot bearing T-Stop | |
| Length | 60 mm |
| Width | 35 mm |
| Height | 60 mm |
Downloads
LABELLING OBLIGATION: © GEZE GmbH
Variants & Accessories
* Notice about the products displayed
The products mentioned above may vary in form, type, characteristics and function (design, dimensions, availability, approvals, standards etc.) depending on the country. For questions please contact your GEZE contact person or send us an E-Mail .