Levolan

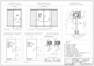
Levolan 120 glass with fanlight * Sliding door fitting for 120 kg glass leafs and fanlight attachment

Levolan 120 roller sliding fitting Slim design with integrated fitting technology
  • Sliding door fitting for glass doors up to 120 kg leaf weight and direct attachment to glass walls or fanlights
  • With damping on one or both sides, for doors up to 120 kg leaf weight so that the door is stopped gently and pulled autonomously into the end position
  • Small floor and side profiles create a generous clearance gauge for fixed panels and glass sliding doors
  • Fixed glass panels can be installed quickly and easily with rubber seals
  • Modular fixed panel option as an "add-on" for the basic hardware
Contact us

Application Areas

  • For design-oriented interior sliding doors for living and office areas
  • For all single- and multiple-leaf sliding doors
  • Attachment directly to glass
  • For attachment on the wall and ceiling (directly and concealed) as well as for glass installation
  • Damped on one or both sides with Levolan 120 SoftStop
  • Smooth running with Levolan 120 SoftStop makes it particularly well suited for doors in living and office spaces

Technical data

Levolan 120 glass with fanlight
Leaf material Glass
Leaf weight (max.) 120 kg
Number of leaves 1-leaf, 2-leaf
Leaf width (min.) 640 mm
Leaf width (max.) 1440 mm
Leaf height (max.) 3500 mm
Leaf thickness from 10 mm
Leaf thickness to 12 mm
Track geometry straight
Type of installation Ceiling, Wall

Downloads

Contact

GEZE Central +46-8-732-34-00