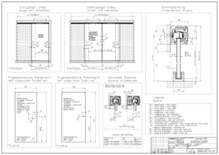
Levolan 120 glass ceiling installation concealed * Sliding door fitting for 120 kg glass leafs and concealed ceiling installation
- Design sliding door fitting system for glass doors with ESG (toughened safety glass ) 10 to 12 mm as well as LSG up to 12.76 mm and up to 120 kg leaf weight
- Slim design with integrated door fitting technology
- Fully integrated in the track
- The Levolan Smart fix installation system means the use of assembly tools is reduced to a minimum - for quick and convenient installation
- Final assembly of the door fitting by simple clipping
- With damping on one or both sides for doors with up to 60 kg leaf weight, so that the door is quietly slowed down and moved automatically into the end position
- Tested for durability in accordance with DIN EN 1527 over 100,000 test cycles
- Cover profiles for ceiling installation enable an elegant connection between the ceiling opening and the door fitting
Application Areas
- For design-oriented interior sliding doors for living and office areas
- For all single- and multiple-leaf sliding doors
- Attachment to the ceiling within a concealed installation
- For attachment on the wall and ceiling (directly and concealed) as well as for glass installation
- Damped on one or both sides with Levolan 120 SoftStop
- Smooth running with Levolan 120 SoftStop makes it particularly well suited for doors in living and office spaces
Technical data
| Levolan 120 glass ceiling installation concealed | |
| Leaf material | Glass |
| Leaf weight (max.) | 120 kg |
| Number of leaves | 1-leaf, 2-leaf |
| Leaf height (max.) | 3500 mm |
| Leaf thickness from | 10 mm |
| Leaf thickness to | 12 mm |
| Track geometry | straight |
| Type of installation | Concealed in the ceiling |
Downloads
LABELLING OBLIGATION: © GEZE GmbH
LABELLING OBLIGATION: © Studio BE / GEZE GmbH
Variants & Accessories
* Notice about the products displayed
The products mentioned above may vary in form, type, characteristics and function (design, dimensions, availability, approvals, standards etc.) depending on the country. For questions please contact your GEZE contact person or send us an E-Mail .